Tvrtka B&B Investiranje gradi vrhunski kvalitetne stanove, sa naglaskom na udobnost i sigurnost. Naš cilj je stvoriti savršen dom za vas.
Zgrada se nalazi na izuzetnoj lokaciji u Ulici Ivana Pavla II, u mirnom i dobro povezanoj četvrti, idealnoj za obiteljsku svakodnevicu. Nudi mir i privatnost, a istovremeno je blizu svih potrebnih sadržaja – škole, trgovina…
Suteren
Suteren
Na suterenu se nalazi 10 garaža i 4 ostave
- Garaža G1: P=13,44 m2
- Garaža G2: P=13,44 m2
- Garaža G3: P=13,44 m2
- Garaža G4: P=13,44 m2
- Garaža G5: P=13,44 m2
- Garaža G6: P=13,44 m2
- Garaža G7: P=15,53m2
- Garaža G8: P=15,53m2
- Garaža G9: P=15,53m2
- Garaža G10: P=15,52m2
PRODANO
Garaža G5
PRODANO
Garaža G6
Prodano
Garaža G7
PRODANO
Garaža G8
PRODANO
Garaža G9
PRODANO
Garaža G10
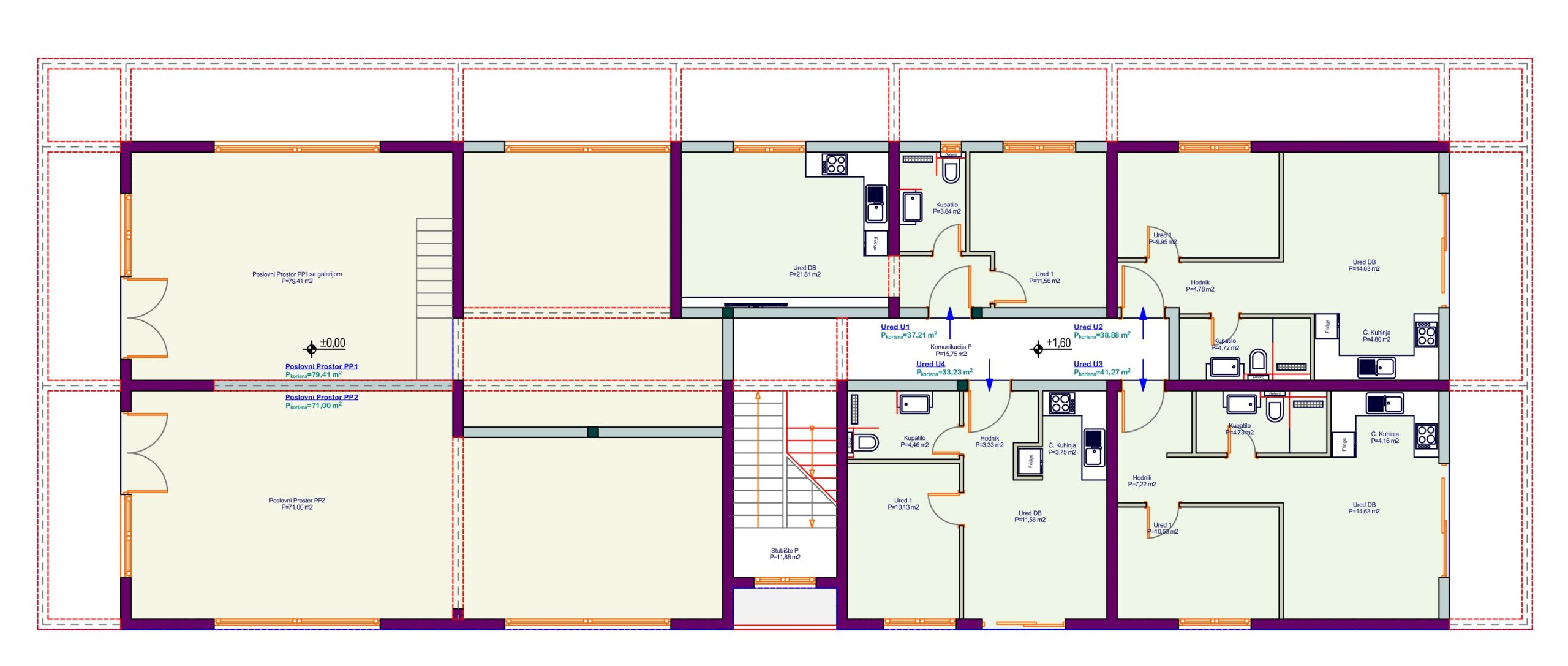
Prizemlje
Prizemlje
Na prizemlju zgrade nalaze se 2 poslovna prostora te 4 ureda.
- Poslovni prostor PP1 sa galerijom P= 79,41 m2
- Poslovni prostor PP2 P= 71,00 m2
- Ured U1 P=37,21 m2
- Ured U2 P=38,88 m2
- Ured U3 P=41,27 m2
- Ured U4 P=33,23 m2
PRODANO
Poslovni prostor PP1
PRODANO
Poslovni prostor PP2
PRODANO
Ured U1
PRODANO
Ured U2
PRODANO
Ured U3
PRODANO
Ured U4






