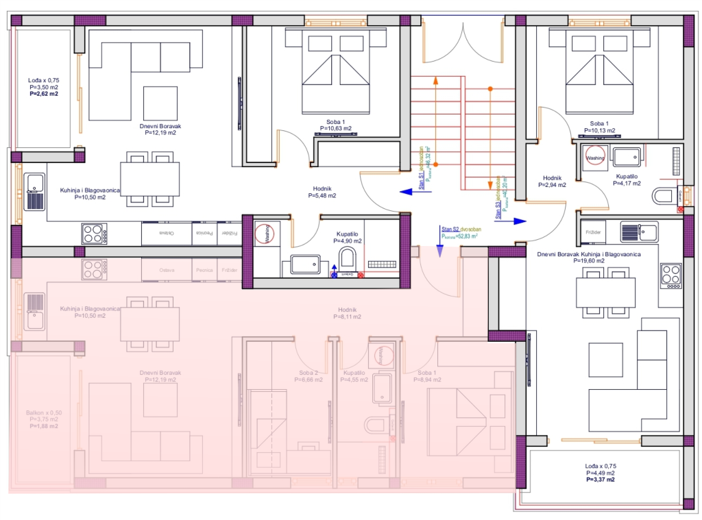
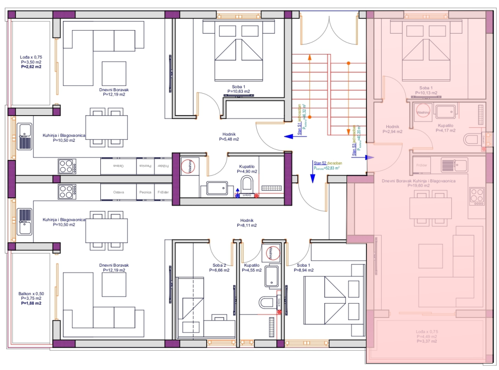
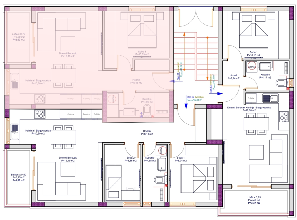
Tvrtka B&B Investiranje gradi vrhunski kvalitetne stanove, sa naglaskom na udobnost i sigurnost. Naš cilj je stvoriti savršen dom za vas.
Zgrada se nalazi na izuzetnoj lokaciji u Mostarskoj ulici, u mirnom i dobro povezanoj četvrti, idealnoj za obiteljsku svakodnevicu. Nudi mir i privatnost, a istovremeno je blizu svih potrebnih sadržaja – škole, trgovina…



